YouTube est désactivé.
next
previous

F3 à vendre secteur Rocade à Ajaccio

---VENDU

En savoir plus sur nos tarifs

Partager le bien

Découvrir l'annonce

Le Groupe MAX IMMOBILIER vous propose en exclusivité, un appartement de type F3 situé dans une résidence très récente, à proximité de toutes les commodités, à Ajaccio.

Le quartier de la Rocade est un secteur dynamique en plein essor, à proximité immédiate des transports, des commerces et des écoles, et à 5 minutes du centre-ville.

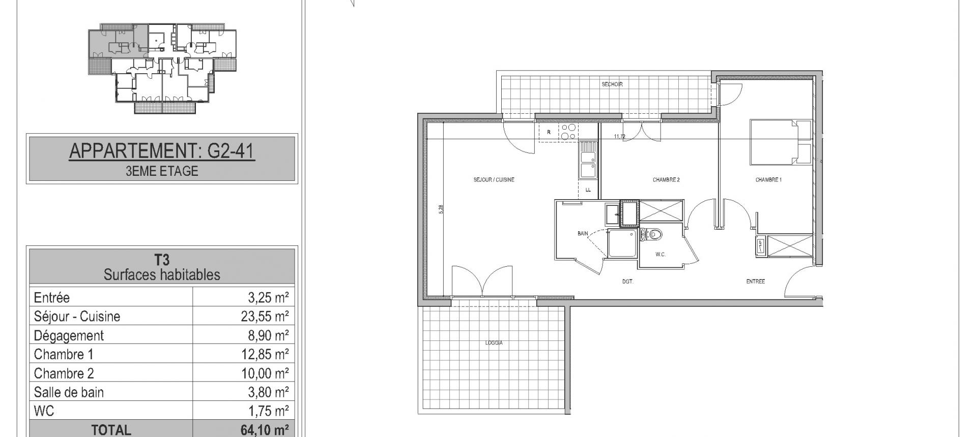
D'exposition Nord-Est, cet appartement se situe en 3ème étage sur 5 avec ascenseur d'un immeuble quasiment neuf livré en 2022. Il bénéficie d'une terrasse de 13.10 m² et d'un balcon de 7.40 m²

Une cave d'1.90 m² complète ce bien.

Points clés

Ascenseur
Ascenseur
Surface Habitable (m²)
Surface Habitable (m²)
63.32 m²
Pièce(s)
Pièce(s)
3
Surface Terrasse
Surface Terrasse
13.10 m²
Surface Loggia
Surface Loggia
7.40 m²

DPE 

B 60 kWh/m².an 

GES 

B 10 kgC02;/m².an 

Diagnostic énergétique effectué le 26 avril 2022

Détails des diagnostics énergétiques

Facture d'énergie estimée : Entre 265 et 359€/an

Montant estimé des dépenses annuelles d'énergie pour un usage standard :
entre 265 et 359€/an
Prix moyens des énergies indexés au 1er janvier 2021

Géorisques :
Les informations sur les risques auxquels ce bien est exposé sont disponibles sur le site Géorisques https://www.georisques.gouv.fr

 

PRESTATIONS F3 EN VENTE CORSE DU SUD

Trois pièces en excellent état, aucun travaux à prévoir.

  • Double vitrage PVC, volets roulants électriques 
  • Carrelage
  • Placards muraux
  • Bac douche vitré, meuble vasque simple, sèche-serviette électrique
  • Chauffage collectif / eau chaude avec compteur individuel
  • Digicode, visiophone
  • Fibre

 

  • Cuisine équipée : Eléments hauts et bas, Four électrique, Plaque de cuisson induction, Hotte

  • Terrasse : Arrivée d'eau, Eclairage extérieur, Prise électrique

 

COMPOSITION T3 A L'ACHAT AJACCIO

Superficie totale 63.32 m² CARREZ

 

  • Dégagement : 12 m²
  • Séjour / cuisine : 23.40 m²
  • Salle d’eau : 3.75 m²
  • WC : 1.75 m²
  • Chambre 1 : 9.80 m²
  • Chambre 2 : 12.62 m²

Superficie annexe : 

 

  • Balcon : 7.40 m²
  • Terrasse : 13.10 m²
  • Cave : 1.90 m²

 

Vous êtes à la recherche d’un appartement de type F3 à acheter ?

Cet appartement est situé dans la résidence Les Terrasses de Bodiccione, à quelques mètres de la Rocade et de l’Avenue Maréchal Juin, à proximité immédiate de toutes les commodités : Arrêts de bus, boulangerie, restaurants, cafés, médecins…

Si vous souhaitez acquérir un bien quasi neuf sans avoir à attendre les délais de livraison, ce bien est fait pour vous.

 

ELEMENTS FINANCIERS

Taxe foncière : Exonéré pendant 2 ans, appartement livré en 2022.

Charges de copropriété :

Bien en copropriété. Pas de procédure en cours.

Nombre total de lots : 35

 

--- €*

*Honoraires à la charge du vendeur

Possibilité d’acquérir deux box en sous-sol en supplément pour le prix de 20.000 et 25.000 €

Prenons contact

Photo profil bonnet noel

MAX IMMOBILIER

Conseiller Immobilier

  04 95 21 01 02

  contact@maximmobilier.fr

Par téléphone


Par email

Enregistrer votre
alerte Email

Vous ne trouvez pas le bien de vos rêves ! inscrivez vous à notre alerte email, pour recevoir des propositions.

Créer mon alerte

En voir plus

 Contactez nous

Localisation du bien

voir sur google map