YouTube est désactivé.
next
previous

Maison en pierre à vendre à Tavaco près d'Ajaccio

---VENDU

En savoir plus sur nos tarifs

Partager le bien

Découvrir l'annonce

Votre agence immobilière à Ajaccio, MAX IMMOBILIER , vous propose en exclusivité cette charmante maison individuelle en pierre de caractère à vendre.

Un bien rare et exceptionnel: une maison corse indépendante au centre d'un village avec un terrain ! C'est produit très recherché.

 Située dans le village de Tavaco aux portes d'Ajaccio, lieu-dit Figarella. D'une surface habitable d'environ 88 m², cette demeure offre un cadre de vie authentique et agréable, mêlant le charme de l'ancien à la beauté de l'architecture traditionnelle corse. Idéalement située au cœur du village, cette maison de caractère, en pierre séduit par son caractère unique.

Vous profiterez d'une belle exposition sud-est ensoleillée. Située sur un versant dominant la totalité de la vallée, elle bénéficie d'une vue dégagée sur les montagnes depuis une grande terrasse de 30 m². Un véritable coup de cœur pour les amoureux de la nature.

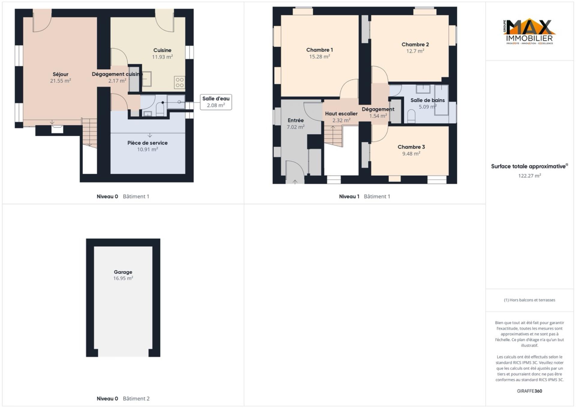
Implantée sur un grand terrain de 1 848 m², cette propriété, de type F4, offre un beau potentiel à Tavaco, en Corse-du-Sud. Elle se compose de trois chambres en rez-de-chaussée et d'un espace séjour-salon avec cuisine en rez-de-jardin.

Un garage indépendant, donnant directement sur la rue et un local de rangement attenant au jardin complètent ce bien, offrant de nombreux espaces de stockage.

Quelques travaux de rafraîchissement sont à prévoir, cette maison possède néanmoins tous les atouts pour devenir un véritable havre de paix. L'assainissement est déjà connecté au tout-à-l'égout.

Tavaco , à seulement 20 minutes d'Ajaccio, est un charmant village corse niché dans un cadre naturel préservé, entre la vallée de la Gravona et le Golfe d'Ajaccio. Connu pour son calme et son authenticité, il est très prisé par ceux qui souhaitent vivre dans un environnement paisible tout en restant proche des commodités de la ville. Entouré de montagnes, Tavaco offre un cadre de vie idéal pour les amoureux de la nature et de la tranquillité, faisant de cette maison de caractère une opportunité d'achat unique à saisir.

 

Points clés

Pièce(s)
Pièce(s)
4
Surface Habitable (m²)
Surface Habitable (m²)
87,53 m²
Surface Terrasse
Surface Terrasse
30 m²
Belle vue
Belle vue
Calme
Calme
Surface grenier (m²)
Surface grenier (m²)
51 m²

DPE 

F 384 kWh/m².an 

GES 

C 12 kgC02;/m².an 

Diagnostic énergétique effectué le 30 septembre 2024

Détails des diagnostics énergétiques

Facture d'énergie estimée : Entre 2 540 et 3 470€/an

Montant estimé des dépenses annuelles d'énergie pour un usage standard :
entre 2 540 et 3 470€/an
Prix moyens des énergies indexés au 1er janvier 2022

Géorisques :
Les informations sur les risques auxquels ce bien est exposé sont disponibles sur le site Géorisques https://www.georisques.gouv.fr

Prestations de la maison de village F4 en vente à Tavaco, Corse du sud

  • Volets bois  
  • Vitrage simple bois  
  • Tout à l'égout  
  • Garage  
  • Fibre  
  • Mur en pierre  
  • Cumulus  
  • Radiateur électrique, cheminée
  • Baignoire et douche  
  • Grenier

 

Composition de la maison en pierre T4 à vendre à Tavaco, Figarella

Superficie Carrez : 87,53 m²

  • Salon : 19,50 m²
  • Dégagement 1 : 2,38 m²
  • Cuisine : 11,36 m²
  • Salle d'eau : 2,01 m²
  • Entrée : 6,49 m²
  • Dégagement 2 : 3,52 m²
  • Chambre 1 : 14,64 m²
  • Chambre 2 : 9,17 m²
  • Salle de bains : 4,84 m²
  • Chambre 3 : 12,38 m²
  • Demi-palier 1 : 1,24 m²

Superficie annexe :

  • Grenier : 51,00 m²
  • Technique locale : 1,51 m²
  • Abri de jardin : 5,10 m²
  • Atelier : 13,26 m²
  • Garage : 16,10 m²

 

 

Éléments complémentaires 

Taxe foncière  : 1215€/an

Logement à consommation énergétique excessive : classe F

 

--- € *

*Honoraires à la charge du vendeur

Prenons contact

Photo profil bonnet noel

FRANCOIS SANTAMARIA

Responsable Commercial

  04 95 21 01 02

  fs@maximmobilier.fr

Par téléphone


Par email

Enregistrer votre
alerte Email

Vous ne trouvez pas le bien de vos rêves ! inscrivez vous à notre alerte email, pour recevoir des propositions.

Créer mon alerte

En voir plus

 Contactez nous

Localisation du bien

voir sur google map